只争朝夕 第3页
人类不断受到伤害:人类伤害自然的感想

人类不断受到伤害:人类伤害自然的感想

引言:人类遭受的伤害无处不在人类,作为地球上最复杂的生物,一直以来都在不断地遭受各种伤害。这些伤害可能来自自然、人为、社会、经济等多个方面,给我们的生活带来了无尽的痛苦和挑战。本文将从不同角度探讨人类不断受到的伤害...

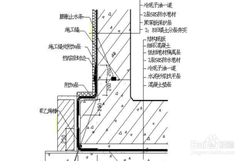
隧道小边墙高度规范图:隧道矮边墙高度如何确定

隧道小边墙高度规范图:隧道矮边墙高度如何确定

隧道小边墙概述隧道小边墙是隧道工程中不可或缺的部分,它位于隧道两侧,起到支撑隧道土体、保护隧道结构安全的作用。隧道小边墙的设计与施工质量直接关系到隧道的稳定性和使用寿命。因此,对隧道小边墙的高度进行规范,对于保障隧...

落实全员培训通关:全员培训通知范文

落实全员培训通关:全员培训通知范文

引言在当今快速发展的社会,知识和技能的更新换代速度不断加快,企业要想在激烈的市场竞争中立于不败之地,就必须不断提升员工的综合素质。全员培训通关,即确保每位员工都能通过系统的培训,提升自身能力,已成为企业发展的关键一...

沙市黄金今日最新价格查询,实时金价走势一网打尽!

沙市黄金今日最新价格查询,实时金价走势一网打尽!

黄金,作为一种珍贵的金属,一直以来都是人们关注的焦点,随着全球经济的发展和市场的波动,黄金价格也在不断变化,本文将围绕“沙市黄金今日价格查询最新”这一主题,为您详细介绍黄金价格的相关知识。黄金价格概述黄金价格受到多种...

警察规范执法举报工作:如何举报警察执法不规范

警察规范执法举报工作:如何举报警察执法不规范

<!DOCTYPE html> 警察规范执法举报工作 引言 警察作为维护社会治安、保障人民群众生命财产安全的重要力量,其执法规范与否直接关系到社会的公平...

水果门店收银规范流程:水果店收银系统怎么操作

水果门店收银规范流程:水果店收银系统怎么操作

引言水果门店作为日常生活中不可或缺的一部分,其收银流程的规范与否直接影响到顾客的购物体验和门店的整体运营效率。本文将详细阐述水果门店收银的规范流程,旨在帮助门店提升服务质量,提高工作效率。准备阶段1. 工作环境...

张泽禹星光之夜演出实时播报,音符掌控全场,震撼心灵之旅

张泽禹星光之夜演出实时播报,音符掌控全场,震撼心灵之旅

摘要:星光之夜里,张泽禹以音符掌控全场,呈现了一场震撼人心的演出。实时播报中,张泽禹的演出精彩纷呈,展现了他出色的音乐才华和舞台魅力。这场演出无疑是一场不容错过的音乐盛宴。XXXX年XX月XX日晚,一场备受瞩目的演出...

物流图实时定位详解,高效解读与应用指南

物流图实时定位详解,高效解读与应用指南

摘要:,,本文介绍了如何高效解读与应用物流图实时定位。通过实时定位技术,可以实时追踪物流车辆的行驶轨迹、位置、速度等信息。观看物流图实时定位时,需注意选择合适的定位平台,了解各功能按钮及地图标注的含义。结合实际运输需...

微信群实时消息更新全攻略,掌握最新动态,轻松交流,实时互动无障碍

微信群实时消息更新全攻略,掌握最新动态,轻松交流,实时互动无障碍

摘要:想要实时掌握微信群消息更新,轻松交流?本攻略为你提供全面指导。通过实时更新功能,随时了解群内最新动态。只需关注群聊,消息即刻推送至手机通知,确保不错过任何重要信息。跟随攻略步骤操作,轻松跟上群聊节奏,实现高效沟...

内华达实时,科技与产业变革的交汇点探索

内华达实时,科技与产业变革的交汇点探索

摘要:内华达实时致力于探索新兴科技与产业变革的交汇点。通过紧跟科技发展趋势,内华达实时不断挖掘新技术与产业融合的机会,推动产业升级和创新发展。该组织关注新兴科技的应用和实践,为内华达乃至全球的企业和创新者提供前沿的科...

Top