引言
不断电交流接触器是一种广泛应用于工业自动化领域的电气元件,主要用于控制交流电源的通断。它具有操作简便、性能稳定、可靠性高等优点。本文将详细介绍不断电交流接触器的接法,帮助读者更好地了解和使用这一重要设备。
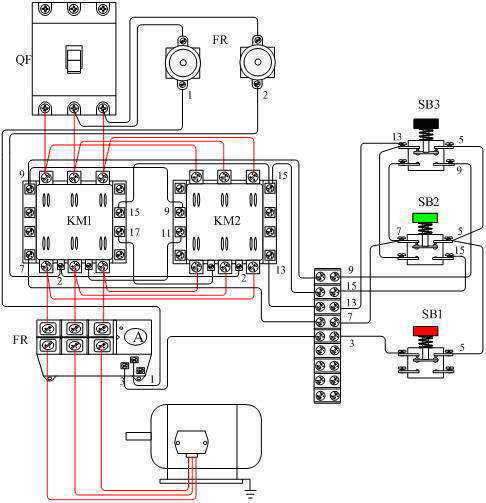
不断电交流接触器的基本结构
不断电交流接触器主要由以下几部分组成:主触点、辅助触点、线圈、灭弧装置、外壳等。主触点用于接通或切断主电路,辅助触点用于控制辅助电路,线圈通过电流产生磁场,使接触器动作。灭弧装置用于在接触器断开时熄灭电弧,防止电弧对设备的损害。
不断电交流接触器的接法原则
不断电交流接触器的接法需要遵循以下原则:
- 正确连接电源线:将电源线正确连接到接触器的电源端子,确保电源电压与接触器额定电压相符。
- 正确连接负载线:将负载线连接到接触器的负载端子,确保负载电流与接触器额定电流相符。
- 正确连接控制线:将控制线连接到接触器的控制端子,确保控制信号正确传递。
- 确保接地良好:接触器应可靠接地,防止因接地不良导致的设备故障或安全事故。
不断电交流接触器的具体接法步骤
以下是不断电交流接触器的具体接法步骤:
- 检查接触器型号和规格,确认电源电压、负载电流等参数是否符合要求。
- 断开电源,确保安全操作。
- 将电源线连接到接触器的电源端子,确保连接牢固。
- 将负载线连接到接触器的负载端子,确保连接牢固。
- 将控制线连接到接触器的控制端子,确保连接牢固。
- 检查所有连接线,确保无松动、短路等异常情况。
- 闭合电源,观察接触器动作是否正常。
- 进行负载测试,确保接触器在负载状态下也能正常工作。
注意事项
在使用不断电交流接触器时,需要注意以下几点:
- 避免长时间过载使用,以免损坏接触器。
- 定期检查接触器,确保接触器清洁、无尘、无油污。
- 避免接触器在潮湿、高温、腐蚀性环境中使用,以免影响接触器性能。
- 接触器安装应牢固,避免因振动、撞击等原因导致接触器损坏。
- 操作人员应熟悉接触器的使用方法和注意事项,确保安全操作。
总结
不断电交流接触器是一种重要的电气元件,其接法对设备的正常运行至关重要。通过本文的介绍,相信读者已经对不断电交流接触器的接法有了更深入的了解。在实际操作中,请务必遵循正确的接法原则和步骤,确保设备的稳定运行和操作人员的安全。
转载请注明来自醉美玉溪,本文标题:《不断电交流接触器接法:交流接触器断不开啥原因 》








蜀ICP备2022005971号-1
还没有评论,来说两句吧...